2024年9月12日20时20分,横琴粤澳深度合作区(以下简称合作区)琴海北路交富城道处通信铁塔(许可编号:XH11-001-00379,以下简称涉事通信铁塔)作业平台发生一起高处坠落事故,造成1人死亡,直接经济损失约160万元。
根据《中华人民共和国安全生产法》《生产安全事故报告和调查处理条例》《横琴粤澳深度合作区发展促进条例》《通信建设工程安全生产管理规定》及有关规定,合作区执委会批准成立横琴粤澳深度合作区琴海北路交富城道“9·12”事故调查组(以下简称事故调查组),负责开展事故调查工作。事故调查组由广东省通信管理局、合作区商事服务局、合作区经济发展局、横琴纪检监察工委、横琴公安局、合作区工会工作委员会等单位组成。
事故调查组按照“四不放过”和“科学严谨、依法依规、实事求是、注重实效”的原则,通过询问笔录、调查取证、查阅资料和专家论证,查明了事故发生经过、直接原因、人员伤亡和直接经济损失等情况,认定了事故性质和责任,提出了对有关责任单位、责任人员的处理建议和事故防范整改措施。
事故调查组认定,横琴粤澳深度合作区广州宇泰信息科技有限公司“9·12”一般高处坠落事故是一起因作业人员未佩戴安全带等劳动防护用品导致的一般生产安全责任事故。
一、事故基本情况
(一)事故发生单位及其他单位概况
1.广州宇泰信息科技有限公司(以下简称广州宇泰公司),类型:有限责任公司(自然人投资或控股),法定代表人:刘某,统一社会信用代码:91440101MA5AXYMR9L,注册资本:人民币1000万元,经营范围:网络技术服务;工程和技术研究和试验发展;计算机系统服务;信息系统集成服务;机械设备租赁、移动通信设备销售;劳务派遣服务等。已取得《建筑业企业资质》,证书编号:DL34427212,资质类别及等级:施工劳务不分等级。已取得《安全生产许可证》,证书编号:(粤)JZ安许证字[2023]034073。
2.中国通信建设第四工程局有限公司(以下简称中通建四局),类型:有限责任公司(非自然人投资或控股的法人独资),法定代表人:卫某祥,统一社会信用代码:91410100169953552J,注册资本:人民币15100万元,经营范围:许可项目:建设工程施工;建设工程勘察;建设工程设计;建筑智能化系统设计;建筑劳务分包;施工专业作业;电气安装服务;第二类增值电信业务等。已取得《建筑业企业资质》,证书编号:D141000986,资质类别及等级:通信工程施工总承包一级。已取得《安全生产许可证》,证书编号:(豫)JZ安许证字[2005]000368。
(二)涉事项目概况
2023年10月16日,工业和信息化部办公厅印发《关于推进5G轻量化(Red Cap)技术演进和应用创新发展的通知》(工信厅通信函〔2023〕280号)。2024年3月28日,中国移动通信集团首发5G-A商用部署,公布包含珠海市在内的首批100个5G-A网络商用城市名单。
2024年8月20日,中国移动通信集团广东有限公司印发《关于下达珠海5G-A通感一体基站规模组网试验项目可行性研究报告批复暨投资计划任务书的通知》(广东立项批复〔2024〕2179号),同意“珠海5G-A通感一体基站规模组网试验项目(项目编码:B24302110AA001Q)”立项建设。
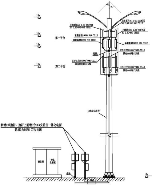
涉事作业为通信领域的安装、调测作业,具体内容为:利用原有18m美化灯杆,在作业平台将原有2.6G-AAU设备同抱杆上移至顶,腾出空间新增本期4.9G-AAU设备,安装位置如图1所示,AAU设备就近做好防雷接地。

图1 安装位置示意图
(三)发包与承包相关情况
1.2022年3月29日,中通建四局与中国移动通信集团广东有限公司签订《中国移动2022年至2023年通信工程施工服务集中采购(设备安装-广东)框架协议(中通四局)-标段二》。
2.2024年9月22日,广州宇泰公司与中通建四局签订《中国通信建设第四工程局有限公司与广州宇泰信息科技有限公司2024年度施工框架协议》。
二、事故发生经过及应急处置情况
(一)事故发生经过
2024年9月12日下午,广州宇泰公司作业人员王某鹏、李某,汽车起重机司机黄某明及其助手陈某宇根据施工任务安排在涉事通信铁塔安装通感服务器。
20时许,王某鹏乘坐汽车式起重机吊篮登上涉事通信铁塔作业平台作业,期间未佩戴安全带和安全帽。20时20分许,王某鹏从第一平台(离地高度约15m)坠落至涉事通信铁塔塔基处。在导流岛(距离坠落点约7m)的李某、陈某宇发现王某鹏坠落后立即赶至坠落点,看见王某鹏躺在塔基草地上,面部有划痕。陈某宇立即拨打120电话报告情况。20时33分许,李某拨打110电话报警。
(二)应急处置情况
20时35分许,120救护车辆抵达事发地点,医护人员对王某鹏进行抢救。20时48分,王某鹏经现场抢救无效死亡。
21时35分,合作区商事服务局值班室接省横琴办总值班室通报后迅速启动应急预案,并派员赶赴事发现场,组织开展事故调查处置前期工作。
事故应急处置总体有力、有序,符合应急处置措施程序及要求。
三、人员伤亡和直接经济损失情况
(一)人员伤亡情况
死者王某鹏,男,汉族,河南焦作人,岗位:安装人员,死亡原因:高处坠落。
(二)直接经济损失情况
根据《企业职工伤亡事故经济损失统计标准》(GB 6721-1986)等标准和规定,事故调查组核定本起事故造成的直接经济损失约160万元。
四、现场勘察及气象情况
(一)现场勘察情况
1.事故发生地点位于琴海北路交富城道处的涉事通信铁塔作业平台上,属于基站设施场地空间。(详见图2)

图2 事故发生点三维扫描图
2.涉事汽车起重机,车辆类型:重型非载货专项作业,牌号:粤WN2830,品牌型号:徐工牌XZJ5304JQZ20,整备质量:29670kg,强制报废期止:2045年12月16日。
3.涉事通信铁塔,产权单位:珠海大横琴道路信息发展有限公司,许可证编号:XH11-001-00379,铁塔高度:18m。
4.涉事通信设备为有源天线单元(Active Antenna Unit,简称AAU设备),设备型号为A9650 S49,涉事AAU设备分为三个模块(CELL1、CELL2、CELL3)。(详见图3)

图3 通信基站设备情况
(二)气象情况
事故当天下午20时至21时,事故地点附近区域的小时最大风速3m/s,排除风力等作用的影响。
五、事故原因
(一)直接原因
事故调查组经深入调查、调阅监控视频及组织专家分析论证,认定本次事故的直接原因是:王某鹏安全意识淡薄,未佩戴安全带等劳动防护用品,高处作业时身体失稳导致高处坠落,经抢救无效死亡。
(二)间接原因
广州宇泰公司未安排专门人员进行安全监督,对特种作业管理不严,安全生产规章制度不健全。
六、事故责任认定及处理建议
(一)建议免于追究责任人员(1人)
王某鹏(死者),广州宇泰公司班组临时安装人员。未按规定正确使用安全带等劳动防护用品,对事故发生负有责任,鉴于王某鹏已死亡,建议免于追究责任。
(二)建议行政立案调查的单位(1家)
广州宇泰公司(事故发生单位)。安全管理混乱,全员安全生产责任制不健全,未按规定配备项目专职安全员,未安排经安全生产考核合格的人员对安全生产进行监督,未严格执行国家标准、行业标准,未监督王某鹏佩戴使用安全带,特种作业人员未取得相应资格上岗作业,未采取有效措施消除事故隐患,对事故发生负有责任。建议由合作区商事服务局依据《中华人民共和国安全生产法》第一百一十四条等规定对其立案调查,追究其有关法律责任。
(三)建议行政立案调查的人员(1人)
刘某,男,群众,广州宇泰公司法定代表人。未健全落实安全生产责任制,未组织制定安全生产规章制度,督促检查安全生产工作不到位,未能及时消除事故隐患,对事故发生负有责任。建议由合作区商事服务局依据《中华人民共和国安全生产法》第九十五条等规定对其立案调查,追究其有关法律责任。
相关行政职能部门在调查过程中,发现事故相关单位或者人员存在其他违反法律、法规、规章规定的违法行为,应当给予行政处罚的,依照相关规定予以处理。事故责任人员涉嫌犯罪的,建议由司法机关依照刑法有关规定追究刑事责任。
七、事故防范和整改措施
(一)广州宇泰公司要健全全员安全生产责任制,立即开展全员安全教育,严格落实特种作业人员资格审核管理,加强高处作业人员作业前安全教育和安全技术交底,严禁违规使用汽车起重机吊运人员。中通建四局要加强对分包单位的安全管理,落实施工人员报备制度,加强项目开工管理。
(二)各通信建设施工企业要建立和落实安全风险分级管控和隐患排查治理双重预防机制,按照《信息通信建设工程生产安全重大事故隐患判定标准》《信息通信工程建设安全风险分级管控和隐患排查治理通用要求》(T/CAICI 88-2024)等规定,组织危险源辨识、风险评价和分级管控,定期更新风险分级管控清单,加强事故隐患排查闭环管理。
(三)建议通信行业主管部门加强对区域内通信建设工程安全生产工作的指导、监督、检查,压实基础电信运营企业安全生产责任,并对该起事故相关单位采取约谈、责令整改等行政管理措施,通报有关情况。
(四)建议合作区相关部门加强对区域内通信铁塔产权单位的监督管理,督促其严格履行通信设施产权人相关职责,建立健全通信安全分级保护、风险评估制度,加强对通信设施运行情况的巡回检查,及时发现并消除安全隐患。